-
-
-
Tổng tiền thanh toán:
-
Kích thước tiêu chuẩn phổ biến dành cho các loại lavabo
Đăng bởi Nguyen Nhan
Thứ Wed,
04/11/2020
Khi bạn lắp đặt chậu, để có được sự hợp lý và và tôn lên sẻ đẹp của thiết bị cũng như không gian phòng tắm, bạn không thể bỏ qua kích thước của sản phẩm này. Bài viết dưới đây sẽ cung cấp cho bạn các kích thước tiêu chuẩn phổ biến nhất của các loại lavabo ( chậu rửa) để bạn tham khảo.
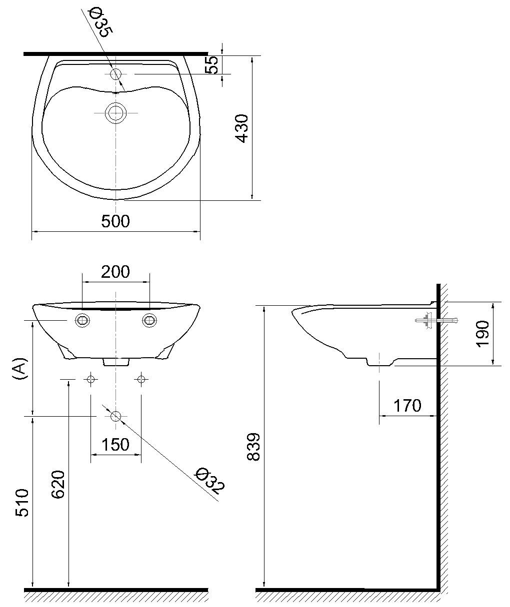
Kích thước lavabo treo tường
Đây là loại chậu rửa mặt phổ biến nhất và cũng thích hợp với không gian nhà vệ sinh nhỏ.
Kích thước ( R x S x C): 500 x 430 x 190 mm
Chiều cao gắn ống xả chờ âm tường: 510 mm (tính từ sàn lên tới tim lỗ co răng trong).
Chiều cao gắng ống cấp nước nóng và lạnh d=21, răn ngoài là 620 mm.
Khoảng cách từ chậu rửa xuống đến mặt sàn sẽ tùy vào vị trí lắp đặt.

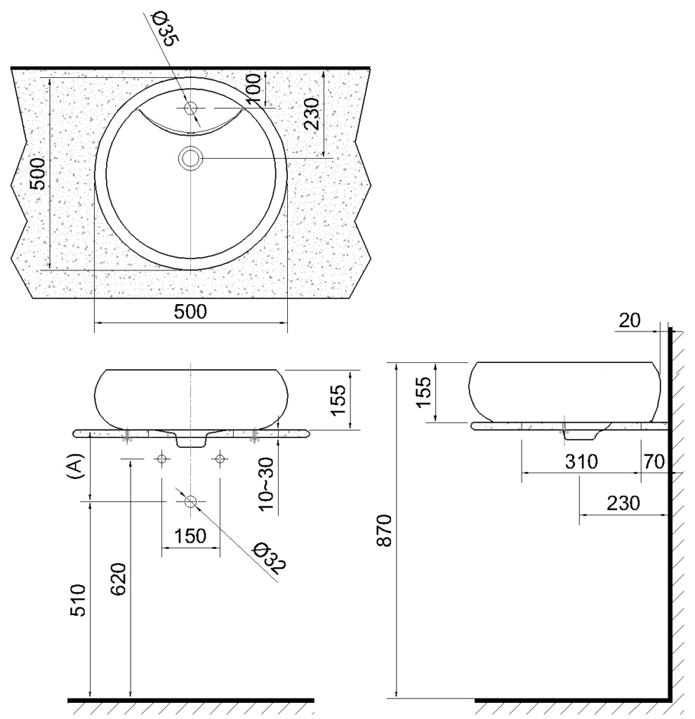
Kích thước lavabo đặt bàn
Là loại bồn rửa mặt được đặt nổi hoàn toàn lên bề mặt của bàn đá. Rất nổi bật và bắt mắt. Vì làm nổi hoàn toàn, nên đa phần bồn đặt bàn đều có kiểu dáng rất đẹp, nổi bật và bắt mắt có thể chinh phục được khách hàng có tính thẩm mỹ cao.
Kích thước (R x S x C): 500 x 500 x 155 mm
Chiều cao gắn ống xả chờ âm tường: d=34, chờ là 510 mm.
Chiều cao gắn ống cấp nước nóng và lạnh chờ âm tường. Được tính từ sàn hoàn thiện lên đến lỗ co đồng d=21, răng ngoài là 620 mm.
Khoảng cách A trong hình tùy theo từng model khác nhau.

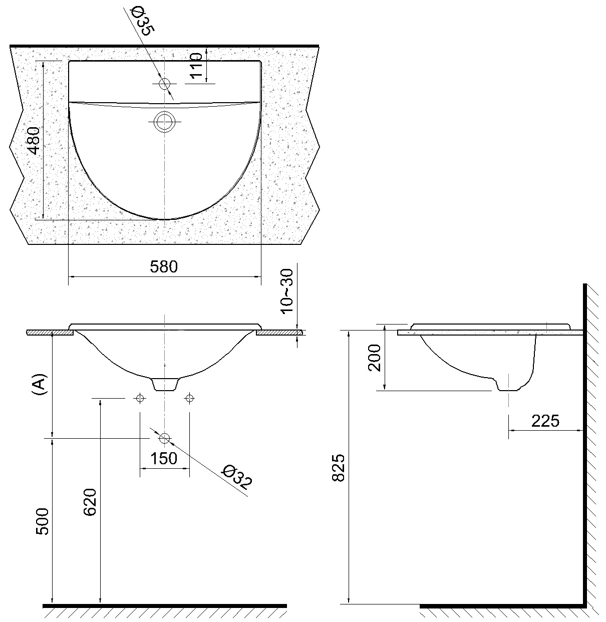
Kích thước lavabo âm bàn
Đây là loại lavabo đặt âm trên mặt bàn đá, thường là đá granite có bề mặt rộng tối thiểu là 600 mm, nếu không gian nhà vệ sinh rộng thì đặt loại này trông khá đẹp mắt vì giấu được ống xả và có thể lắp tủ bên dưới để đựng đồ. Nếu không làm tủ thì có thể lắp mặt dựng đá granite có chiều cao là 200 mm đủ để che ống xả và có tỉ lệ hợp lý đối với mặt bàn.
Kích thước lavabo (R x S x C): 580 x 480 x 200 mm
Chiều cao gắn ống xả chờ âm tường được tính từ sàn lên đến tim lỗ co răng trong là 500 mm
Chiều cao gắn ống nước chờ âm tường được tính từ sàn lên đến tim lỗ co đồng d=21, răn ngoài là 620 mm
Khoảng cách A trong hình là tùy từng model sẽ có khoảng cách khác nhau.

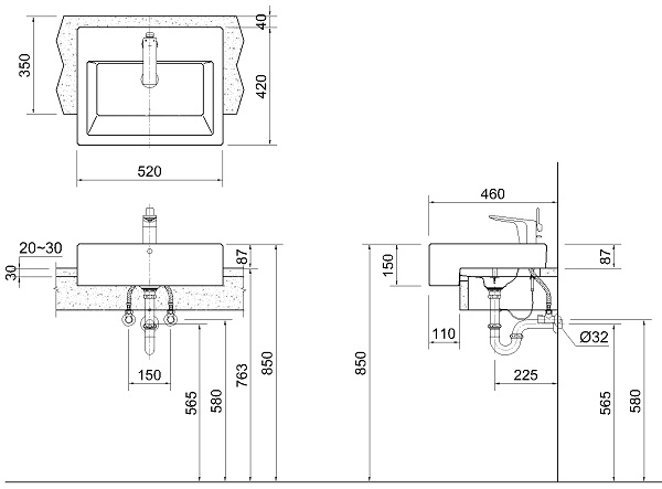
Kích thước lavabo dương bàn
Đây cũng là loại lavabo đặt nổi trên mặt bàn đá granite nhưng ưu điểm của nó là dùng cho nhà vệ sinh có không gian nhỏ nhưng vẫn muốn có bàn đá. Vì kích thước chiều rộng tiêu chuẩn của bàn đá loại lavabo âm bàn là 600 mm, trong khi đó nếu dùng loại này ta chỉ cần chiều rộng 350 mm là đủ bố trí.
Kích thước lavabo (R x S x C): 520 x 420 x 150 mm;
Chiều cao gắn ống xã chờ âm tường tính từ sàn hoàn thiện lên đến lỗ co trong d = 34 là 565 mm;
Chiều cao gắn ống cấp nước nóng và lạnh chờ âm tường tính từ sàn hoàn thiện lên đến tim lỗ co đồng d = 21, răn ngoài là 580 mm.

*Lưu ý: kích thước lavabo tiêu chuẩn sẽ phụ thuộc vào từng kiểu dáng thiết kế và thương hiệu khác nhau.
Bạn cần tư vấn hoặc mua sản phẩm Lavabo chính hãng, hãy liên hệ với chúng tôi để được giá tốt nhất.
- Địa chỉ 1: Số 2 - Phố Xốm - Hà Đông - Hà Nội
- Địa chỉ 2: 285 Lê Trọng Tấn, Hà Đông, Hà Nội.
- Địa chỉ 3: BT3 Lô 8, KĐT Vinaconex 3, Trung Văn, Nam Từ Liêm, Hà Nội.
Hotline: 0968.458.885.
