-
-
-
Tổng tiền thanh toán:
-
Cấu tạo và cách lắp đặt bồn tiểu nam Inax
Đăng bởi Nguyen Nhan
Thứ Thu,
17/09/2020
Bồn tiểu nam Inax có cấu tạo đơn giản và rất dễ thi công lắp đặt, để bạn nắm được cách lắp đúng kỹ thuật, chúng tôi sẽ hướng dẫn bạn cách lắp và những lưu ý khi lắp đặt thiết bị này.
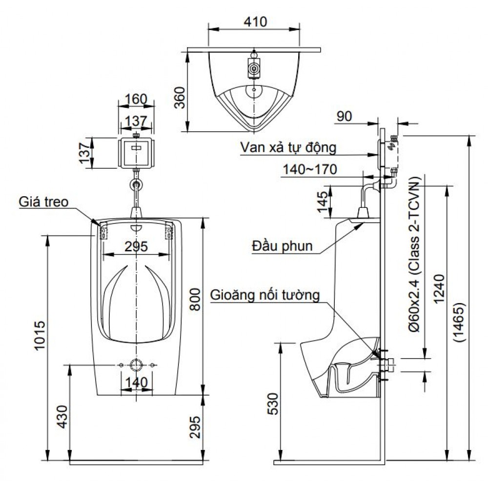
Cấu tạo bồn tiểu nam Inax
Cấu tạo bồn tiểu nam bao gồm các bộ phận chính như sau:
– Thân bồn tiểu làm bằng sứ có tráng men
– Ống thoát bồn tiểu được gắn với ống thoát trong tường bằng cao su non để tránh rò rỉ
– Gioăng nối tường
– Ống cấp nước
– Van xả tiểu nam
– Giá treo, vít cố định đối với bồn tiểu nam treo tường

Cách lắp đặt bồn tiểu nam Inax
- Bước 1: Xác định ống chờ cấp nước và ống thoát nước
- Bước 2: Lắp ống chữ T vào sau lưng mặt bích, trát keo cố định ống ren mặt bích vào tường
- Bước 3: Cố định các giá đỡ hậu của bồn tiểu bằng ốc ren
- Bước 4: Lắp vòng đệm bệ tiểu nam và cố định bồn tiểu cho cân, chắc chắn
- Bước 5: Lắp van xả vào trong ống cấp nước của bồn tiểu
- Bước 6: Bật phụ kiện cấp nước, kiểm tra xem có bị rò rỉ nước hay không
- Bước 7: Điều chỉnh áp lực nước để cài đặt các trạng thái xả nước phù hợp
Những lưu ý khi lắp đặt ống chờ tiểu nam
Ống chờ tiểu nam là bộ phận giúp thoát nước tiểu, nước xả bồn tiểu. Khi lắp đặt bồn tiểu nam, ống chờ tiểu sẽ nối vào ống chờ thải. Khi người dùng sử dụng xong bồn tiểu nam, nước tiểu, nước xả sẽ theo ống chờ tiểu này xả trôi vào hệ thống nước thải của công trình.

Kích thước ống thoát tiểu nam
Kích thước ống thoát tiểu nam phụ thuộc vào tùy từng mã sản phẩm bồn tiểu nam mà bạn chọn mua. Thông thường, ống thoát tiểu nam có kích thước khoảng 110 – 140 mm.
Cách lắp đặt ống chờ tiểu nam đúng kỹ thuật
Về cách đặt ống chờ tiểu nam, bạn cần chú ý đến việc đo kích thước từ giá treo tiểu đến ống chờ tiểu cũng như khoảng cách của 2 giá treo tiểu một cách chính xác để tránh trường hợp bắt vít treo giá đỡ bệ tiểu bị lệch khiến cho bồn tiểu bị nghiêng ngả, không cố định chắc chắn.
Một lưu ý nữa mà bạn cũng cần ghi nhớ khi lắp ống chờ tiểu nam đó là sử dụng gioăng nối tường đúng kích cỡ khi gắn lên ống chờ tiểu rồi bắt vít để cố định bộ phận này cho thật chắc chắn, giúp cho việc xả thoát nước tiểu của bồn tiểu được hiệu quả hơn.
Để mua được sản phẩm bồn tiểu nam Inax chính hãng, hãy đến với chúng tôi bạn sẽ được tư vấn và phục vụ tốt nhất với giá thành cạnh tranh nhất.
- Địa chỉ 1: Số 2 - Phố Xốm - Hà Đông - Hà Nội
- Địa chỉ 2: 285 Lê Trọng Tấn, Hà Đông, Hà Nội.
- Địa chỉ 3: BT3 Lô 8, KĐT Vinaconex 3, Trung Văn, Nam Từ Liêm, Hà Nội.
Hotline: 0968.458.885
